Aurora Hill

Click or tap on an image to view it in full.

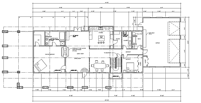
Project name:   AURORA HILL
Square footage:   6300
Features:  extensive outdoor decks . apartment over garage
Comments: long and spacious /cold weather package
Drafting services by Jim Fuhrer of Utent Enterpises

You may click these to view some printable Adobe Acrobat files :
Elevation 1  •  Elevation 2  •  House Areas

Scroll to Top