Bayview
Click or tap on an image to view it in full.
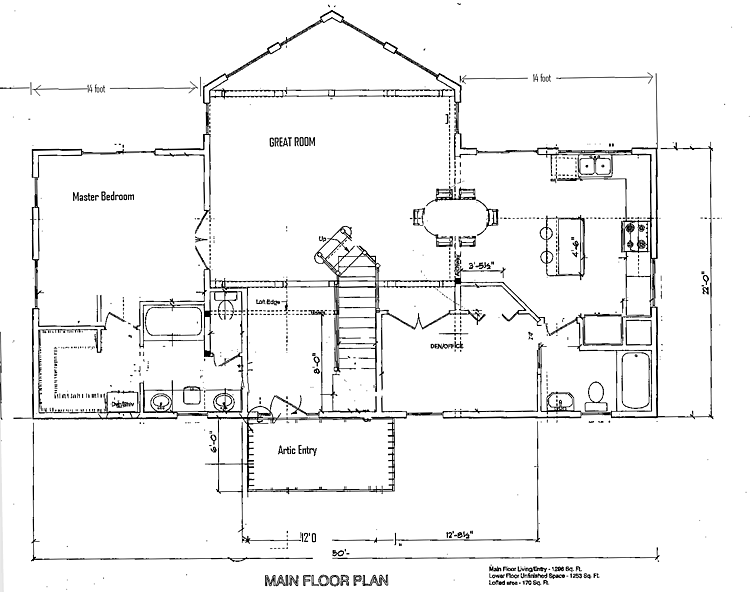
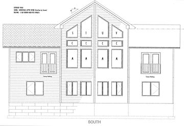
Project name: BAYVIEW
Square footage: 2700
Features: Great Room with Hammer–truss and embellishments
Comments: ‘Hybrid’ package w/stick frame wings
Floor plans by HOMADE designs
Alaska Hand Crafted Timberframe Structures
Click or tap on an image to view it in full.
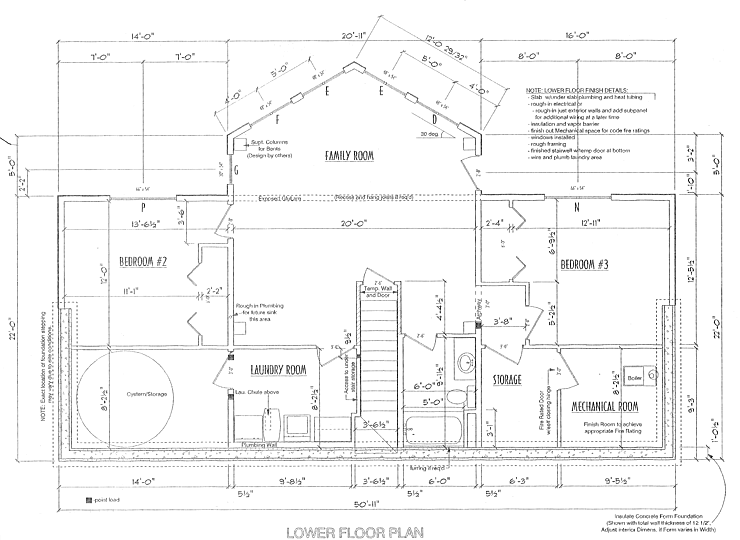
Project name: BAYVIEW
Square footage: 2700
Features: Great Room with Hammer–truss and embellishments
Comments: ‘Hybrid’ package w/stick frame wings
Floor plans by HOMADE designs