Bear Creek
Click or tap on an image to view it in full.
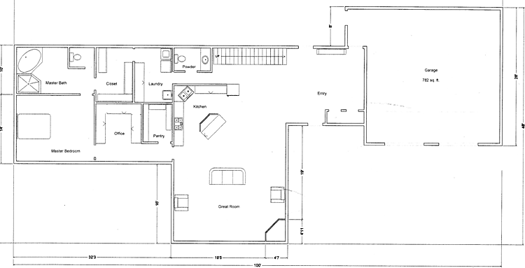
Project name: BEAR CREEK
Square footage: 3700
Features: open great room and kitchen / exterior timber framing
Comments: hybrid timber frame wings for cost savings. Mountain Timber Design
Alaska Hand Crafted Timberframe Structures
Click or tap on an image to view it in full.
Project name: BEAR CREEK
Square footage: 3700
Features: open great room and kitchen / exterior timber framing
Comments: hybrid timber frame wings for cost savings. Mountain Timber Design