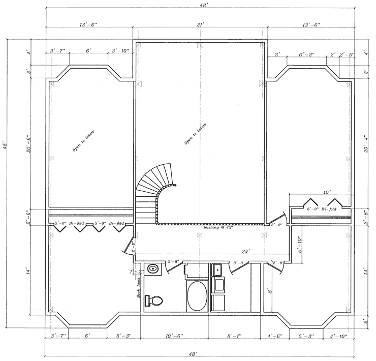
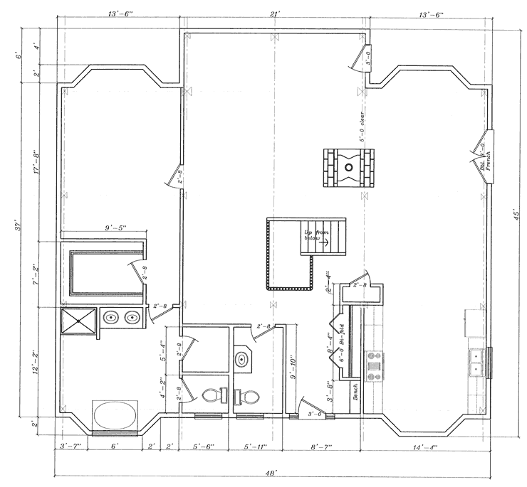
Alaska Hand Crafted Timberframe Structures
<- Back to Plans
Click or tap on an image to view it in full.