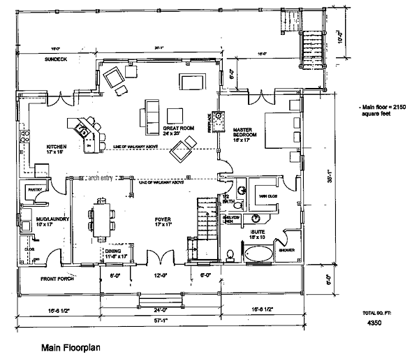
Eagle River Valley
Click or tap on an image to view it in full.
Project name: EAGLE RIVER VALLEY
Square footage: 4350
Features : Hammer Truss great room , hybrid frame wings
Comments: Catwalk over great room , arched timbers in secluded dining room