Kenai River Chalet
Click or tap on an image to view it in full.
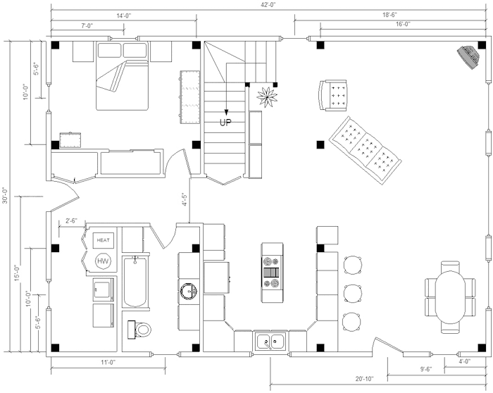
Project name: KENAI RIVER CHALET
Square footage: 2000
Features : open design ,spacious , outdoor decks
Comments: Simple , beautiful, cost effective
Alaska Hand Crafted Timberframe Structures
Click or tap on an image to view it in full.
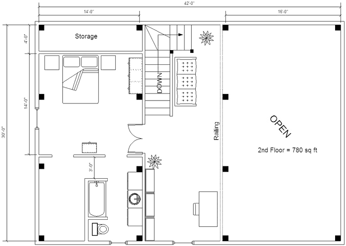
Project name: KENAI RIVER CHALET
Square footage: 2000
Features : open design ,spacious , outdoor decks
Comments: Simple , beautiful, cost effective