Lakeside
Click or tap on an image to view it in full.
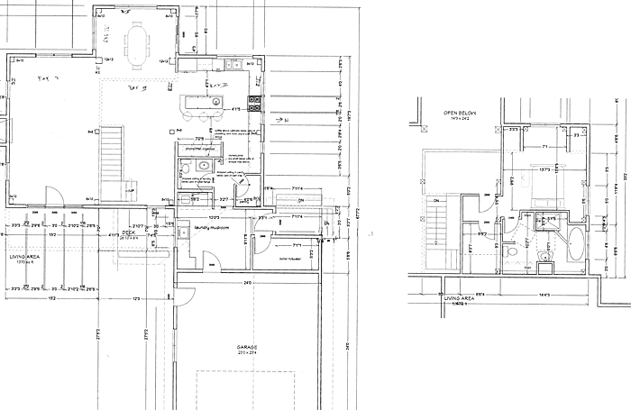
Project name: LAKESIDE
Square footage: 2900
Features : Hammer Truss great room , open first floor
Comments: efficient cost to living area ratio , common ATF project/design
Alaska Hand Crafted Timberframe Structures
Click or tap on an image to view it in full.
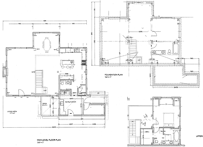
Project name: LAKESIDE
Square footage: 2900
Features : Hammer Truss great room , open first floor
Comments: efficient cost to living area ratio , common ATF project/design